Triple-Haus München-Pasing
Triple-Haus München-Pasing
Triple-Haus München-Pasing
Triple-Haus München-Pasing
Triple-Haus München-Pasing
Triple-Haus München-Pasing
Triple-Haus München-Pasing
Triple-Haus München-Pasing
Triple-Haus München-Pasing

Triple-Haus in München-Pasing

LPH 1-4

"HS6 - Neubau von drei Reihenhäusern sowie Abbruch des Bestandes."

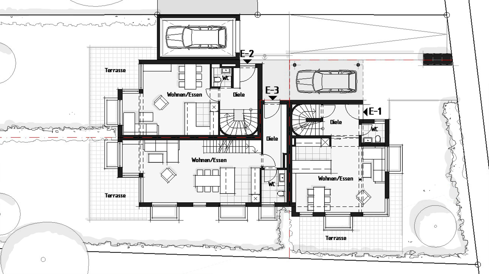
Gegenstand des Projekts ist der Entwurf eines Dreiparteien-Reihenhauses sowie die Erstellung des Bauantrags im Rahmen der Leistungsphasen 1-4. Die Planung erfolgte in freiberuflicher Tätigkeit für das Architekturbüro Stark Architekten in München.

Der Entwurf entwickelt einen klar gefassten, kubischen Baukörper, der die drei ineinander verschachtelten Reihenhauseinheiten zu einer ruhigen, einheitlichen Gesamtform zusammenführt und deren interne Gliederung nach außen bewusst zurücknimmt.

Eine besondere planerische Herausforderung stellte die Unterbringung der erforderlichen Stellplätze dar. Diese wurde durch die Kombination eines offenen Carports auf der einen und einer als Grenzbebauung ausgebildeten Duplexparkgarage auf der anderen Seite gelöst.

Baugenehmigung: 2020
Baukosten: ca. 1.200.000,- €